Actueel
Nieuwbouw MK Tooling
Stil zitten zit ons niet in de genen van Machines Kennes buiten de dagelijkse ontwikkelingen bij MK Gilze is er ook weer een mooie ontwikkeling bij onze Dochter firma MK Tooling
Groot nieuws (www.mktooling.nl)
In december 2018 is er een Go gegeven voor het uitbreiden van MK Tooling.
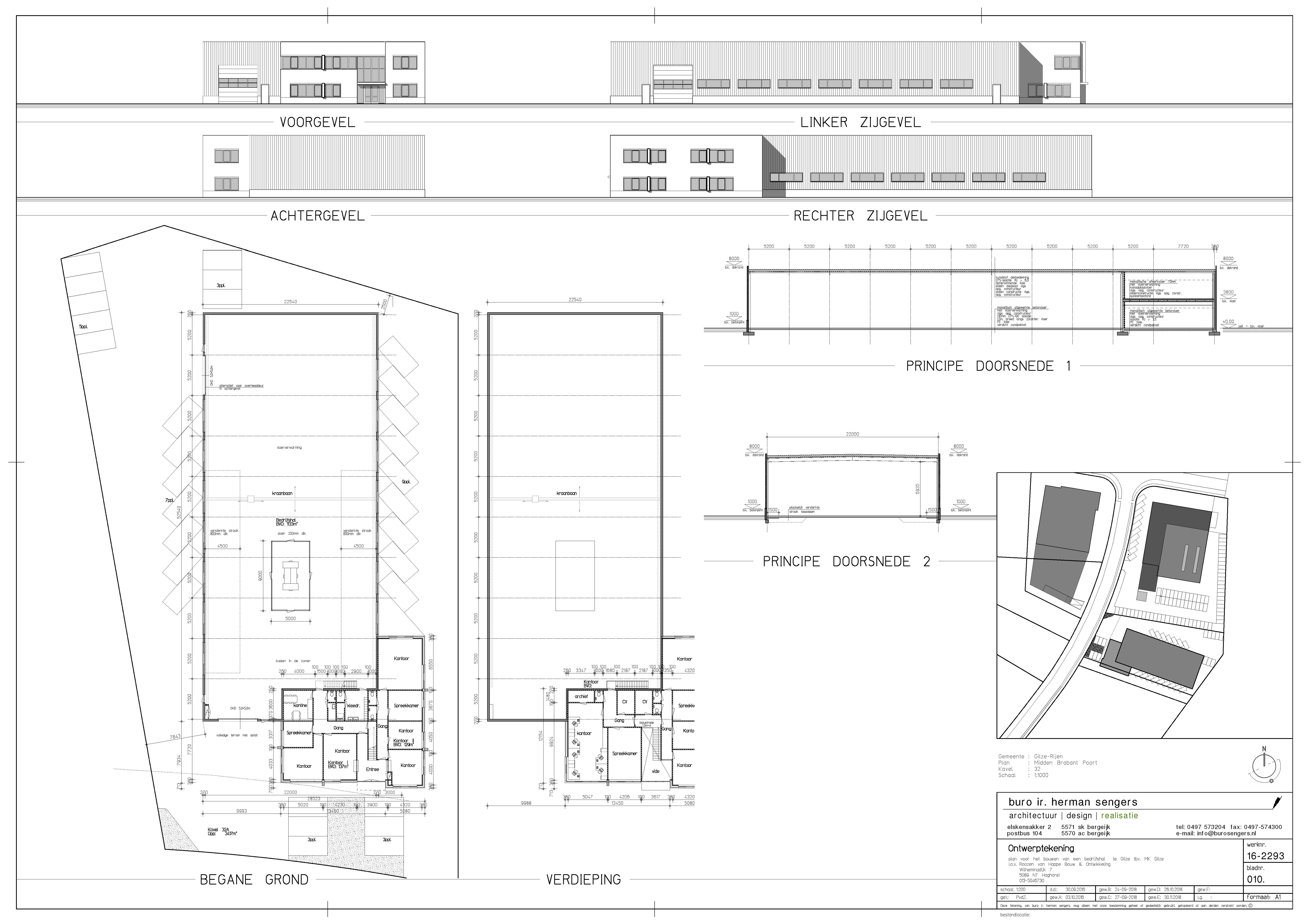
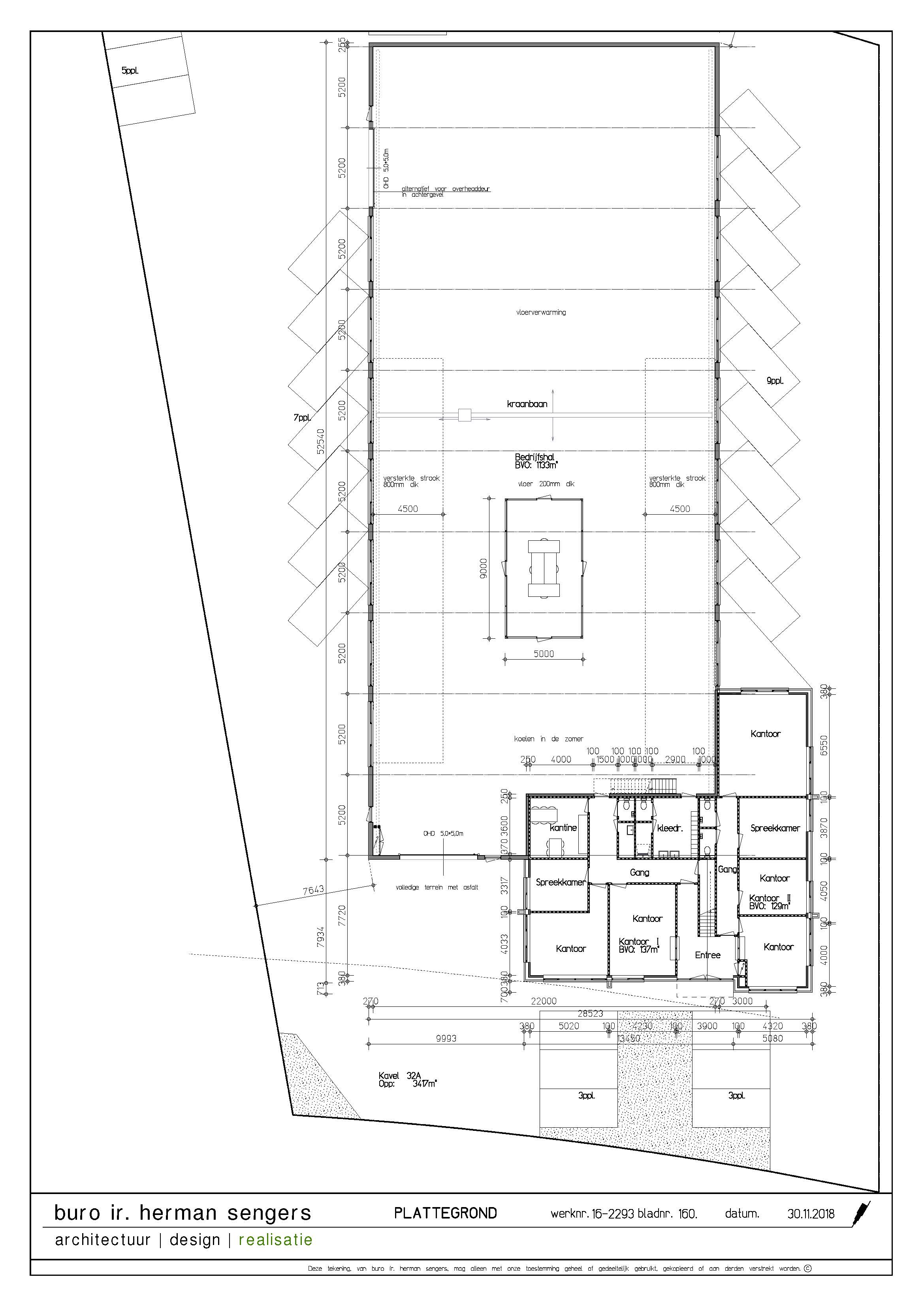
Buiten dat er een prachtige nieuwe machine aan ons machine park wordt toegevoegd komt er ook een complete nieuwbouw. Deze nieuwbouw zal dichter bij MK Gilze worden gecreëerd. Daarmee is het beter mogelijk om korte lijnen tussen de teken kamer van MK Gilze en de bewerkingscentrums van MK Tooling te hebben. Deze nieuwbouw zal rond de zomer van 2019 gereed moeten zijn.
Onderstaand alvast de eerste tekeningen van de nieuwbouw. Via onze website en social medium kanalen als Facebook en LinkedIn zullen wij iedereen die ervoor geïnteresseerd is op de hoogte houden.
