Actual
New construction MK Tooling
Sitting quietly is not in the genes of Machines Kennes outside the daily development at MK Gilze there is also a nice development at our daughter company MK Tooling
Great news (www.mktooling.nl)
In December 2018 a Go was given for expanding MK Tooling.
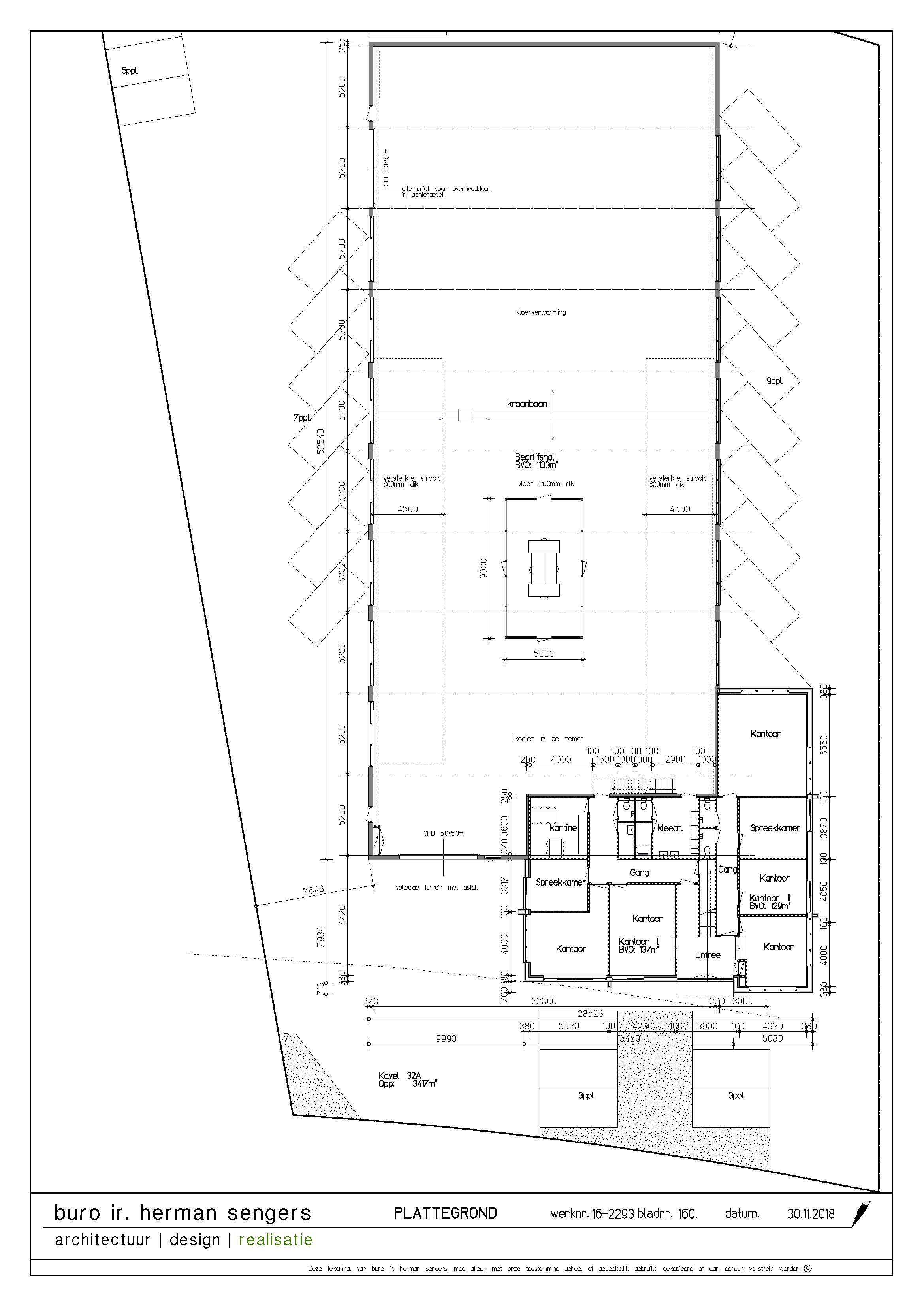
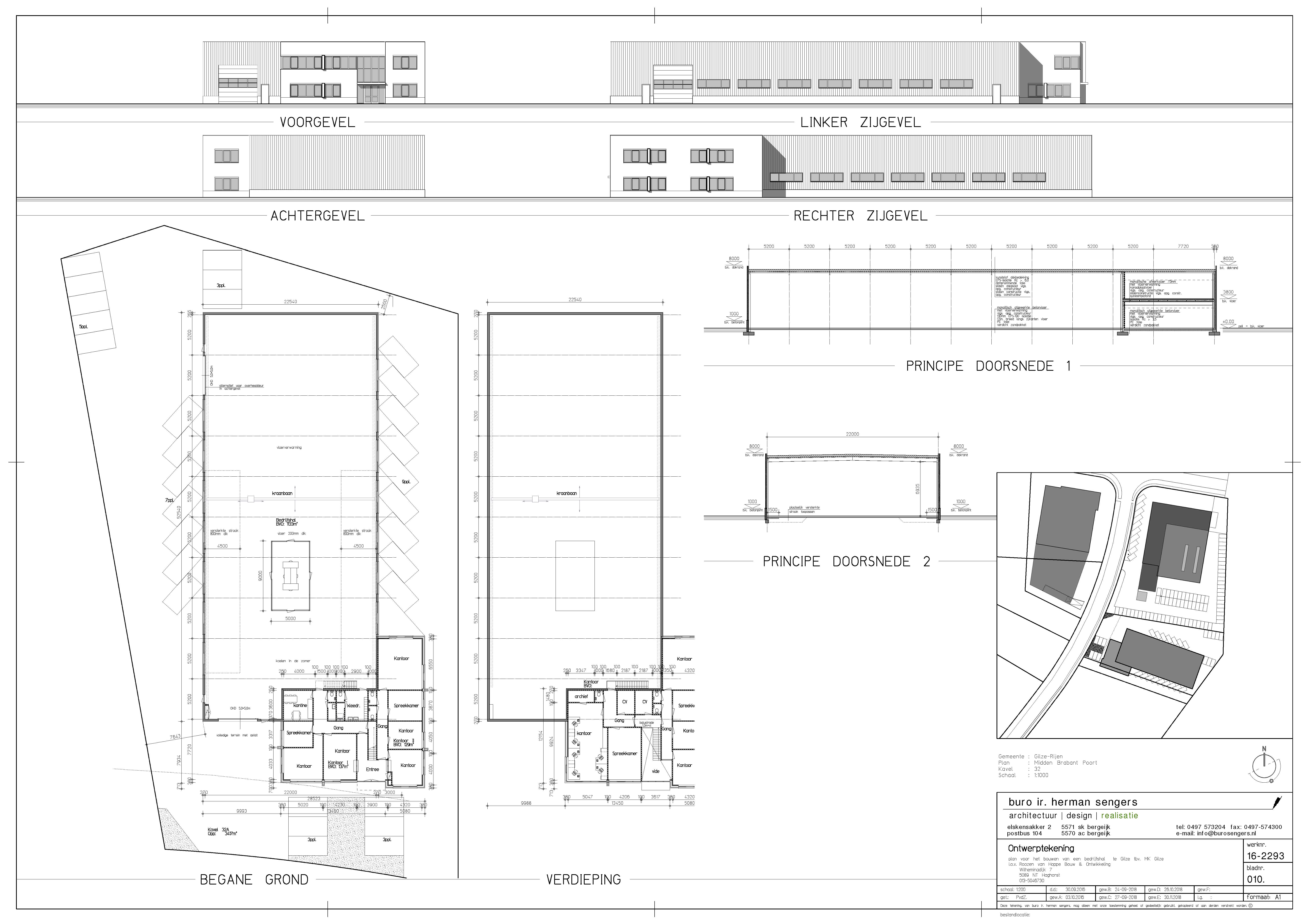
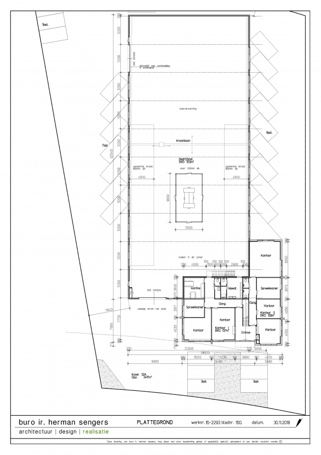
Apart from the fact that a beautiful new machine is being added to our machine park, there will also be a complete new building. This new building will be created closer to MK Gilze. This makes it easier to have short lines between the sign room of MK Gilze and the machining centers of MK Tooling. This new building will have to be completed around the summer of 2019.
Below you can see the first drawings of the new building. Through our website and social media channels such as Facebook and LinkedIn, we will keep everyone interested in it up to date.
