Actual
From drawing board to production
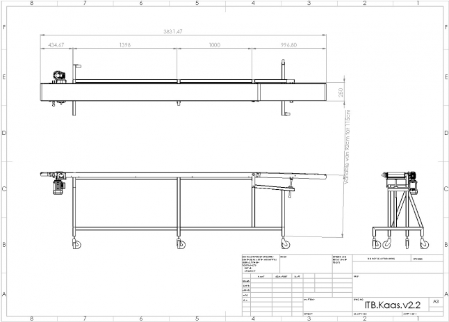
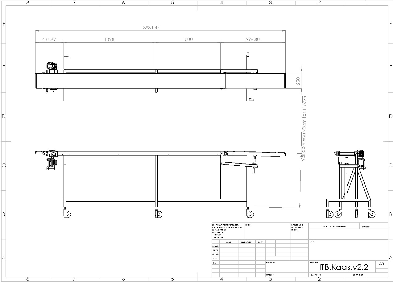
We also make use of our used Multivac machines supply and discharge machines. Here is a small look from the design of a conveyor belt. This tire is made in consultation with the customer, and when approved by the customer, drawings and later components are constructed. In the future, we will include in this news message when more of the band is involved.
